Münchner Architektur

Ehem. Militärlazarett

Name Ehem. Militärlazarett
Architekt Zenetti Arnold  
Stadtbezirk 9. Neuhausen-Nymphenburg
Stadtbezirksteil Neuhausen
Straße Lothstraße 11
Jahr Baubeginn 1868
Jahr Fertigstellung 1868
Baustil romanisierend
Kategorie Keine Kategorie
Baustil Keine Kategorie
romanisierend
Suchbegriffe Militärlazarett 

Plan

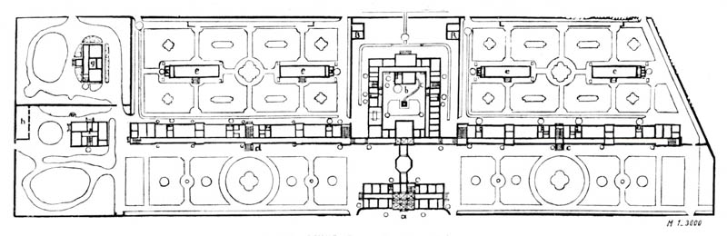
Ehem. Militärlazarett – Lothstraße  – Zenetti Arnold
Ehem. Militärlazarett Lothstraße
Urheber: Reber - Bautechnischer Führer durch München (1876)

Beschreibung

Ehem. Militärlazarett, jetzt staatliches Krankenhaus, langgestreckter, romanisierender Rohbacksteinbau, 1868-74 von Arnold Zenetti.